国内来势汹汹的新冠疫情终于渐渐退去。最近,房企全面复工,大家的工作基本重新回到正轨。明源君留意到,很多房企复工后干的第一件事,就是结合疫情客户的心理,研发升级产品。
最近,标杆房企就扎堆发布了新产品。
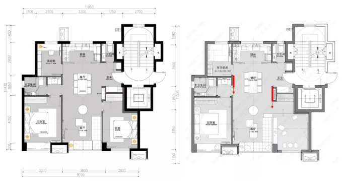
融创华中区域发布了一款135+新户型,针对三代同堂家庭,该户型由上海柏涛设计;球王会体育在线推出标准化“抗疫新品”,对很多产品细节进行了升级;保利全新发布Well集和社区,即全生命周期居住系统1.0的升级版;成都万科联合五感纳得推出了全新125平四房户型。
那么,标杆房企的新产品带来了哪些新尝试?下面明源君结合案例来详细分析一下。
01
动区设计强调多场景
提升客户白天在家的体验
以前,客户习惯了白天在外上班,晚上回家吃饭、洗澡、睡觉的生活模式。当白天在家时间变长后,原来的生活方式就不能满足需求了。所以,如何提升客户白天在家的体验,就成了重点要思考的问题。
一、客厅增加多功能空间,丰富白天使用空间的场景
以前很多户型中,客厅是家庭成员唯一的共同活动空间,兼具会客功能。高端项目可能会分化为家庭厅和会客厅,分摊两个功能。但随着客户生活方式的变化,对于客厅功能的需求越来越多,客厅不再是一家人一起看电视的地方了。
比如融创华中区域推出的135+创新户型,除了传统家庭起居厅,还增设了大量的活动空间,丰富了业主白天使用空间的场景。

▲融创华中区域135+户型,图源:上海柏涛
以厅堂系统为例,这个户型至少给出了以下5组场景:
①社交厨房:利用折叠玻璃门,厨房可封闭可开敞。厨房空间面积增大,可以同时容纳两个人共同操作。而开敞厨房可以增强做饭的人与在客餐厅活动的人的互动。
②团圆餐厅:餐厅位于十字形家庭交流区的中间,相比传统餐厅,空间可以外延,不会存在吃饭坐不下的情况。
③ 多功能学习空间:孩子可以在这里写作业,夫妻在这里阅读、办公,也可以带孩子一起做手工、玩游戏,父母可以在这里下棋。
④家庭起居区:一家人的休闲时光也可以在这里度过,看电视聊聊天
⑤景观阳台区:父母可以坐在这里晒太阳喝茶,和环境亲密接触;如果有朋友来访,这里就是能充分享受自然的会客厅,让久在室内的人心旷神怡……
再比如球王会体育在线抗疫新品中,也在入户处增设了一个趣味空间,可以作为孩子写作业、做手工、玩游戏的区域,客厅室内做了长条凸窗,增加了休闲场景。

▲图源:球王会体育在线房地产
二、重点打造户外空间,每个人都能找到自己的空间
除了客厅的多功能空间,户外空间也是重点升级的场所。
比如郑州建业樱桃沟项目,设计了L型景观大阳台,阳台空间形成了种植、健身、休闲、洗晒收纳、手工、宠物六大功能模块。孩子在这里养宠物,父母在这里养点花花草草,妻子在这里练练瑜伽,丈夫在这里喝茶看风景。
▲郑州建业樱桃沟项目,图源:嘉睿产品机构
户内空间加上户外空间,就能为业主提供足够多的活动空间。这个时候,即便一家人宅在同一套房子里,但由于每个人都能找到自己的场所,家人就不会感觉拥挤憋屈。
三、对于刚需户型,通过可变空间切换不同模式
对于面积有限的刚需户型,动区设计则强调可变、联动,让原本局促的空间通过变化来实现更多可能性。
比如保利Well 集合社区中,他们一方面优化入户空间流线,另一方面采用“LDKB公区联动”设计,即客厅、餐厅、厨房和阳台进行一体化设计,将原本割裂的空间变成完整的大空间。
▲保利的创新户型升级

▲保利创新户型的公区设计——“LDKB公区联动”
这个与之前旭辉第六代产品中提出的巨厅设计理念比较类似。其实就是同一空间在不同时间的功能转化。
万科在很多90平户型中也采取了这样的设计,而且引入了移门系统,让空间变化更简单便捷。客厅通过移门的开合可以形成双面宽大客厅,当家里来了客人则可以通过移门隔出一间次卧,这样一来,客厅右侧空间得到最大化的利用。
▲ 万科翡翠山晓90平户型
以前让业主自己来变化这个空间比较麻烦,现在只要把客厅和客卧之间的墙移开就可以了。
此外,还可以通过洄游户型设计来增加住户的活动范围,提高空间趣味性。洄游设计即通过洄游动线将空间串联,比如小孩子喜欢跑跑跳跳,有了这样一个动线,他就能更好地发泄精力。
▲仁恒园和洄游户型
同时,洄游动线还能让生活变得更高效便捷,比如郑仁恒园和形成“玄关→家政间→厨房→餐厅→玄关”的洄游动线,从玄关到家政间清洗消毒后,直接进到厨房,无需绕行,让生活更便捷高效。
02
玄关设计更精细化
增加消杀功能,提升收纳能力
以前,玄关在很多户型中,功能主要是储物收纳,高端项目则兼顾实现阻隔和展示功能。也有很多刚需户型为了做到零浪费,甚至不设玄关。
但经历这次疫情后,很多人的想法发生了变化。据《赛拉维-助家战“疫”大调查》显示,71%的客户对在入户玄关处洗手/物品消毒有需求。这也对玄关设计提出了新的要求。
一、增加洗手消毒功能,提升收纳能力
总的看来,现在玄关需要的功能包括:
①储物收纳:除了鞋柜,还需要收纳外套、包包、儿童室外玩具、雨伞、钥匙等,但现在玄关收纳功能越来越强大。比如成都万科最新125平户型玄关收纳量达到800库,各种运动、娱乐设备等都可以收纳在这里。
②换鞋换衣:在入户前换鞋脱外套,避免把外面的细菌灰尘带回家,保持室内空气环境和空气的洁净。
③洗手消毒:提供洗手台或消毒台,进入户内前先洗手,对于快递等物品先消毒。以前很少项目考虑这个功能,如果能增设这一功能,将成为产品新卖点。
对于刚需刚改户型,没有足够空间去单独设洗手台和消毒台,可以在其他空间上叠加这个功能。例如,户内有两个以上卫生间的户型,可以将一个公卫设在入户附近,并做分离式设计。
另一个设计手法是将北阳台放到入户附近,必要时增加洗手台。比如融创华中区域135平户型就将北阳台与入户玄关打通,非常时期可以增设洗手台。
④装饰展示:对于高端项目,玄关还要起到装饰展示的功能,因为玄关作为入户第一个空间,能强烈展示主人的品味。
二、玄关布局,尽量做到洁污分区
由于客户对在玄关换衣洗手、物品消毒有需要,那么玄关布局上最好能做洁污分区。
对于大面积玄关,条件允许情况下,可以做全面的分离式玄关,形成完全的洁污分区。球王会体育在线在玄关处设置了中转空间,与家政区结合,设有洗手池、消毒台、洗衣机、外衣紫外线消毒等,并与北阳台相连。客户在玄关柜换下干净的鞋子,脱下外套到柜子里进行紫外线消毒,把带回来的物品放到消毒台消毒后,再把手清洗干净。除此,还增加足够的空间放置没来得及处理的外部物品。
▲图源:球王会体育在线房地产
如果条件限制,则可以通过地板的材质对玄关洁污区域进行划分,换下的脏鞋子等尽量储存在非清洁区域,拖鞋等放置在清洁区域。非清洁区域通常选用耐污性较强的石材、地砖等,同时保证注意材料的防滑性。
三、根据洁净需求,区分入户流线
在玄关的流线设计上,融创将动线设计分为平时归家动线和特殊时期消杀流线。
平时归家动线,买菜回来从次净收纳间直接进入厨房,避免弄脏餐厅……小孩外出玩耍后,回家了可以户外玩具放入次净收纳。特殊时期,把次净收纳间与厨房的门锁上,从外面回来先在次净收纳间做消毒处理,避免对生活区产生影响。
球王会体育在线在入户流线分为“轻度处理”流线和“深度消毒”流线。如果只是短暂出门,简单消毒、换鞋换衣后,就可以沿着“轻度处理”动线步入客厅,如果是长时间在公共空间活动,则沿着另一条动线,流水洗手,外衣直接拿到北阳台上晾晒或清洗,不必带着脏衣上的细菌穿越客厅。
▲图源:球王会体育在线房地产
而且球王会体育在线对于电梯厅入户的项目,还设置了电梯自动消毒功能,只要有人用过后,电梯会自动消毒,大大提升客户的安全感。
03
餐厨空间
为客户提供更多元的生活方式
传统厨房设计面积都比较小,而且功能单一,烹饪方式只有中餐。但现在客户生活方式发生了很大变化。平时吃久了中餐,偶尔也想尝试一下西餐,周末做烘焙更是一种解压方式。做饭也不再是女主人的责任,聚餐时家人朋友一起下厨更有乐趣。
一、合理布局提升空间利用率
球王会体育在线标准化抗疫新品中,将餐厅和厨房做成一体化空间,餐厅和厨房化零为整,加上分区明确的U型布局,即使全家上阵,也不会显得拥挤。
而且还在餐厅右侧增设了一个2.6米的西餐操作台,这样能将厨房部分功能放到外面操作台来做。这个西餐操作台,与厨房、餐厅可以组成烹饪社交空间。一家人可以在操作台一起准备早餐,下午也可以坐着闲聊或小酌一杯。
▲图源:球王会体育在线房地产
成都万科最新推出125平四房户型,同样采用客餐厨一体化设计,形成一个大面积家庭核心区。在厨房做饭的人可以随时照看在客厅玩耍的孩子,还能边做饭边聊天。
而且该户型为横厅设计,客厅、餐厅、厨房都临采光面,整个方厅观景面达到6.5米,通风采光效果极佳。在厨房做饭,心情也很美好。
▲图源:由五感纳得(上海)建筑设计有限公司提供
二、收纳空间基于动线布置,提升存取效率
随着厨房家用电器增多,厨房收纳变成越来越难。
而在厨房收纳空间上,可分为食品存储区、清洗区、准备区、烹饪区;对各区域对应的空间体量及收纳的物品进行科学划分。
04
主卧空间功能更强大,体验更极致
传统卧室只能放下一张床和一个衣柜,改善项目会增加一个衣帽间和卫生间。但这次宅在家里,很多人会发现,有时候要找个安静的独立空间很难。比如在客厅办公,总会被家人不停打扰,回到卧室却没有书桌。夫妻感情越来越淡,因为很少机会过二人世界。
这都对主卧空间设计提出了新要求。上文提到的融创新户型,在主卧空间融合了工作、休憩、休闲等功能模块。丈夫在小书房看书办公,妻子在浴缸边泡澡边听歌边看夜景。泡完澡还可以在飘窗上看会书。睡前,夫妻两人还可以打开投影看看电视。
▲图源:上海柏涛
如果主卧空间面积有限,则应充分利用好每一平空间。比如将飘窗打造成沙发、可折叠式书桌,延展式梳妆台等等。
▲图源:绿城中国建研中心
球王会体育在线将转角飘窗增加2平米后,形成临时工作台,就能在卧室增加办公功能。
05
卫生间最注重健康设计
对于卫生间,标杆房企的关注点在于如何提升空间的健康设计。
首先,采用分离式设计,避免水汽对干区设施造成侵蚀及细菌滋生。
其次,对于卫生间各种设施进行升级优化。
比如球王会体育在线抗疫新品中,卫生间采用三分离设计,同时地漏采用防返臭体系,马桶采用高压冲洗器,做到封闭不串气,确保有室内的安全封闭性。
保利在这次的新产品中则升级了卫生间的地漏、水封等。比如将干区地漏升级为抗菌地漏,利用重力作用,实现有排水时地漏打开、无排水时地漏封闭,最大限度地防止废气上窜。
▲图源:POLY技术汇,保利新产品升级抗菌地漏
同时,将干湿区的分散式水封设计,改良为干区地漏和洗手盆或淋浴间共用集中水封,这样能防止污水、污气的互串影响,防止病菌扩散。
▲集中水封,图源:POLY技术汇
小结
房企全面复工后,有些房企忙着调整组织,有些房企忙着冲业绩,有些房企则将精力聚焦在产品升级上。
经过疫情危机后,客户变得更加挑剔,房企将面临更加残酷的市场。如果不及时根据用户的需求更新产品,为客户升级生活方式,很可能会被客户用双脚投票。